
Идеально подходит для: глэмпингов, небольших дачных участков, компактных офисов или банных комплексов.
НАЙТ 18 – это маленький островок уединения в мире больших скоростей. Лаконичный силуэт с плоской крышей, строгие линии и панорамные окна – этот дом создан для тех, кто ценит минимализм и гармонию с природой.
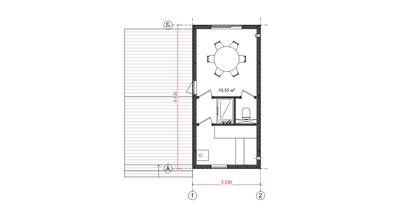
Площадь модуля:18,5 м²
Этажность:1 этаж
Стоимость:от 1 389 000 ₽
Краткие характеристики
Тип фундамента:Свайно-винтовой
Габариты:3,23 м × 6,83 м
Высота потолков:2,5 м
Каркас тен:Стропильные фермы на МЗП
Усиление каркаса:Наружный контур из фанеры 15 мм
Тип отделки фасада:Планкен из лиственницы
Тип кровли:Плоская кровля | Профлист
Утепление:Напыляемый утеплитель (8см)
Отопление:Инфракрасный теплый пол, радиаторы
Окна и двери:5-камерные стеклопакеты, 70 мм
Технология строительства
Интерьерные решения
Преимущества построить модульный дом с нами
Стиль СЕВЕР — классика и натуральные материалы.
- База — для самостоятельной отделки
- Оптима — с отделкой и инженерией
- Премиум — с мебелью и техникой
Гарантия на каждый модуль
Забудьте о проблемах загородной жизни! Если произошла поломка — наши мастера решат практически все задачи абсолютно бесплатно, в рамках гарантийного обслуживания. Вам останется лишь наслаждаться жизнью в собственном доме.

.jpg)
.jpg)

















